株式会社駿河勧業開発
分譲地・売土地・中古物件販売等・賃貸の仲介は、静岡県富士市・富士宮市を中心に不動産を扱う株式会社駿河勧業開発。
お問い合わせ
HOME 物件検索 不動産無料査定 不動産税務相談 売却不動産の募集 会社案内
HOME > 物件検索 > 分譲地・売土地 富士市富士岡分譲地2区画-1号地
分譲地・売土地 ID : 01001335

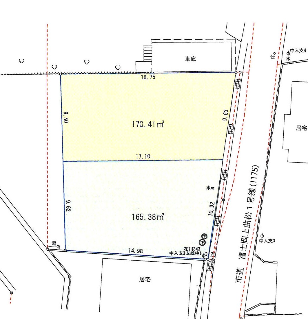
富士市富士岡分譲地2区画-1号地(ふじおかぶんじょうち)

★富士岡分譲地2区画
★敷地50坪!閑静な住宅地で叶える穏やかな新生活
★建築条件なし!お好きなハウスメーカーで素敵なプランをたててみませんか。

ご予約済
富士市富士岡分譲地2区画-1号地

お気に入りに追加 物件お問い合わせ 物件一覧に戻る
価格 9,200,000円ご予約済
所在地 富士市富士岡【アクセスマップ】
最寄り 岳南鉄道  須津駅 徒歩 12 分
岳南鉄道  岳南富士岡駅 徒歩 14 分
周辺環境
坪単価 円
土地面積 170.41㎡ (51.55坪)
土地権利 所有権
地目 宅地
都市計画 市街化区域
用途地域 第一種住居地域
建ぺい率 60%
容積率 200%
接道状況 東側:富士市認定道路
現況 造成中
法令上の制限 第一種高度地区
引渡日 相談
引渡条件
取引態様 媒介
備考

不動産無料査定


※ホームページ上の情報と現況が異なる場合は、現況が優先となります。

※掲載中に売却済、売却中止、価格変更となる場合がございます。予めご了承ください。

※価格は全て税込みまたは非課税表示となっております。

※仲介物件の場合、ご成約の際は仲介手数料・消費税が必要となります。


プライバシーポリシー | サイトマップ

HOME

会社案内

リンク

お問い合わせ

不動産無料査定

不動産税務相談

売却不動産の募集

分譲地自社造成履歴

物件検索

分譲地・売土地

中古住宅

新築・中古マンション

投資用中古アパート・マンション

投資用中古ビル・工場・店舗

新築分譲住宅

居住用賃貸物件

事業用賃貸物件

事業用借地

建て貸し用地

賃貸収益不動産の買取

お気に入り物件

Copyright © 株式会社駿河勧業開発. All rights reserved.