事業用賃貸物件
ID: 12000215
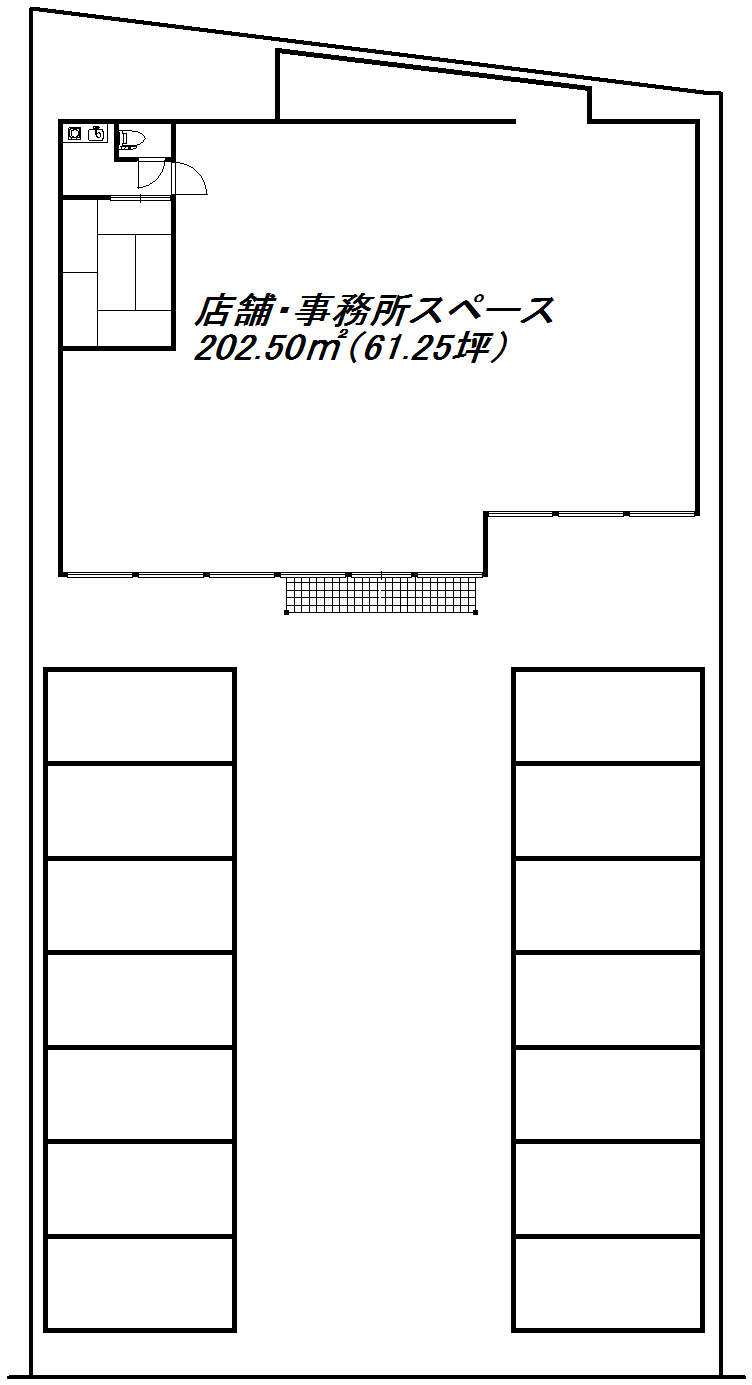
富士市石坂ロードサイドテナント
大渕街道沿いの路面店舗となり、ポテト石坂店の斜め向かい側テナントとなり、髙い掲出効果が望めます。また、人口密度の高さからも集客が期待できます!
ご成約済
株式会社駿河勧業開発へのお問い合わせは、お問い合わせフォームより承っております。
お急ぎの方は、お電話0545-52-0990にてご連絡ください。
メールを送信すると、ご入力いただいたメールアドレス宛に自動返信メールが届きます。
もしメールが届いていない場合は下記の理由が考えられますので、お手数ですがご確認ください。
- 入力されたメールアドレスが間違っている
- 迷惑メールフォルダに入ってしまっている
- メールの受信/拒否設定がされている
estateお問い合わせ
不動産のこと、どんな小さなご相談でもお気軽に。
気になる物件がある方、条件に合う不動産を探している方、売却と購入を同時に検討している方など、どんなご相談にも丁寧にお応えします。富士・富士宮エリアを熟知したスタッフが、物件の特徴や周辺環境、将来性まで踏まえて誠実にご案内。初めての不動産取引でも安心して進められるよう、資金計画や手続きの流れもわかりやすくご説明いたします。お気軽にお問い合わせください。
お問い合わせはこちら















