中古住宅
ID: 02000262
沼津市西間門適合リノベーション住宅
内装フルリフォーム済みの、レスコハウス(現・百年住宅)製3階建です。ぜひご覧ください。
電車好きな方は3階北側バルコニーから見てくれると感激すると思います♪
ご成約済
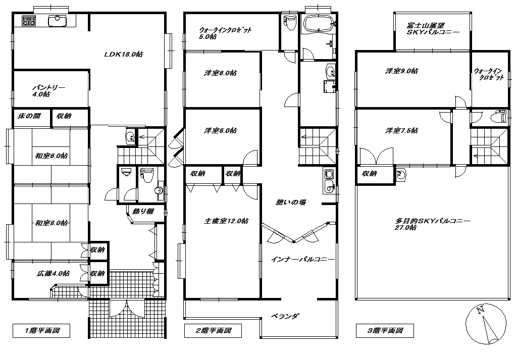
■閑静な住宅街に所在する重厚なRC造3階建適合リノベーション施工済み邸宅となります!
■2階インナーバルコニーは、プライベート空間として室内空間に広がりをもたせます!
■3階Skyバルコニーは、日中は青空を満喫でき、夜間は星空を独り占めできます!
■御引渡しより5年間の構造・給排水保証が付与され、見えないリスクもフルカバーとなります!
■2階インナーバルコニーは、プライベート空間として室内空間に広がりをもたせます!
■3階Skyバルコニーは、日中は青空を満喫でき、夜間は星空を独り占めできます!
■御引渡しより5年間の構造・給排水保証が付与され、見えないリスクもフルカバーとなります!
株式会社駿河勧業開発へのお問い合わせは、お問い合わせフォームより承っております。
お急ぎの方は、お電話0545-52-0990にてご連絡ください。
メールを送信すると、ご入力いただいたメールアドレス宛に自動返信メールが届きます。
もしメールが届いていない場合は下記の理由が考えられますので、お手数ですがご確認ください。
- 入力されたメールアドレスが間違っている
- 迷惑メールフォルダに入ってしまっている
- メールの受信/拒否設定がされている
estateお問い合わせ
不動産のこと、どんな小さなご相談でもお気軽に。
気になる物件がある方、条件に合う不動産を探している方、売却と購入を同時に検討している方など、どんなご相談にも丁寧にお応えします。富士・富士宮エリアを熟知したスタッフが、物件の特徴や周辺環境、将来性まで踏まえて誠実にご案内。初めての不動産取引でも安心して進められるよう、資金計画や手続きの流れもわかりやすくご説明いたします。お気軽にお問い合わせください。
お問い合わせはこちら























