富士市久沢ガレージ付き中古住宅|富士・富士宮の不動産詳細情報|駿河勧業開発(イエステーション富士店・富士宮店)

MENU

採用情報

物件紹介

富士市久沢ガレージ付き中古住宅

中古住宅

ID: 02000332

富士市久沢ガレージ付き中古住宅

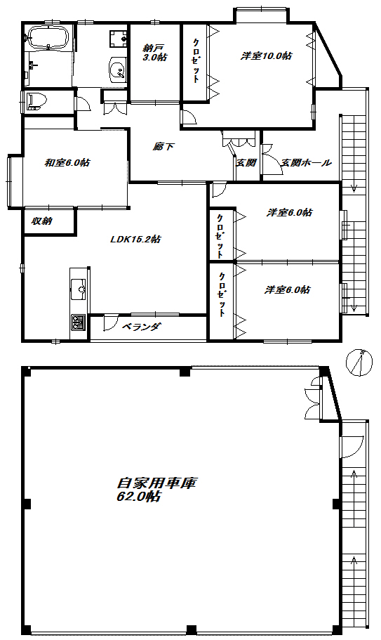
※1階が自家用車庫となり、2階が居宅となっている多目的利用可能な中古住宅の販売スタートです!
※買主様の取得要件がございますので、詳細は御問合せ下さい!

価格

0 円 ご成約済

所在地
富士市久沢
土地面積
385.52m²
土地権利
所有権
地目
宅地
都市計画
市街化調整区域
用途地域
都市計画法第43条許可必要
建ぺい率
60%
容積率
200%
接道状況
南側県道(幅員7.2m)に間口19.5m接道
現況
居住中
引渡日 相談
相談
引渡条件
現況有姿売買
取引態様
媒介

※ホームページ上の情報と現況が異なる場合は、現況が優先となります。
※掲載中に売却済、売却中止、価格変更となる場合がございます。予めご了承ください。
※価格は全て税込みまたは非課税表示となっております。
※仲介物件の場合、ご成約の際は仲介手数料・消費税が必要となります。

株式会社駿河勧業開発へのお問い合わせは、お問い合わせフォームより承っております。
お急ぎの方は、お電話0545-52-0990にてご連絡ください。

メールを送信すると、ご入力いただいたメールアドレス宛に自動返信メールが届きます。

もしメールが届いていない場合は下記の理由が考えられますので、お手数ですがご確認ください。

  • 入力されたメールアドレスが間違っている
  • 迷惑メールフォルダに入ってしまっている
  • メールの受信/拒否設定がされている

estateお問い合わせ

    物件名 [ID]必須

    お名前必須

    フリガナ必須

    貴社名

    ご住所

    電話番号

    メールアドレス必須

    内容必須

    不動産のこと、どんな小さなご相談でもお気軽に。

    気になる物件がある方、条件に合う不動産を探している方、売却と購入を同時に検討している方など、どんなご相談にも丁寧にお応えします。富士・富士宮エリアを熟知したスタッフが、物件の特徴や周辺環境、将来性まで踏まえて誠実にご案内。初めての不動産取引でも安心して進められるよう、資金計画や手続きの流れもわかりやすくご説明いたします。お気軽にお問い合わせください。

    富士市・富士宮市不動産の売買

    賃貸の仲介(分譲地・売土地・中古物件販売等)

    トップに戻る

    Fudousan Plugin Ver.6.2.0