中古住宅
ID: 02000385
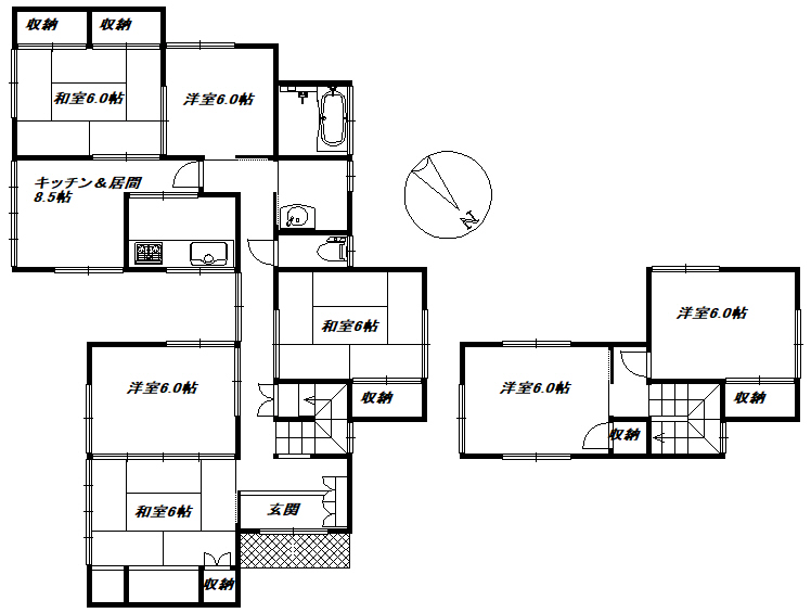
富士宮市山宮池田邸中古住宅
☆閑静な住宅街に所在する日当たり通風良好な住宅です!
☆多目的利用可能なガレージあり!
ご成約済
■S48年築ですが、適宜リフォームを実施しており、年数から考えると良好なコンディションです。
■部屋数が多く、大家族でも対応可能です。
■敷地広々、100坪近くあります!
■部屋数が多く、大家族でも対応可能です。
■敷地広々、100坪近くあります!
株式会社駿河勧業開発へのお問い合わせは、お問い合わせフォームより承っております。
お急ぎの方は、お電話0545-52-0990にてご連絡ください。
メールを送信すると、ご入力いただいたメールアドレス宛に自動返信メールが届きます。
もしメールが届いていない場合は下記の理由が考えられますので、お手数ですがご確認ください。
- 入力されたメールアドレスが間違っている
- 迷惑メールフォルダに入ってしまっている
- メールの受信/拒否設定がされている
estateお問い合わせ
不動産のこと、どんな小さなご相談でもお気軽に。
気になる物件がある方、条件に合う不動産を探している方、売却と購入を同時に検討している方など、どんなご相談にも丁寧にお応えします。富士・富士宮エリアを熟知したスタッフが、物件の特徴や周辺環境、将来性まで踏まえて誠実にご案内。初めての不動産取引でも安心して進められるよう、資金計画や手続きの流れもわかりやすくご説明いたします。お気軽にお問い合わせください。
お問い合わせはこちら












