富士市大渕リシャール富士|富士・富士宮の不動産詳細情報|駿河勧業開発(イエステーション富士店・富士宮店)

MENU

採用情報

物件紹介

富士市大渕リシャール富士

新築・中古マンション

ID: 03000420

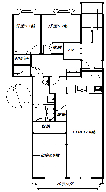
富士市大渕リシャール富士

☆高台にそびえる陽当り眺望良好な分譲マンションです!
☆低予算で、分譲マンションライフを御満喫されたい御客様に大変おすすめなマンションとなります!

価格

0 円 ご成約済

所在地
富士市大渕2865番8
周辺環境
セブンイレブン 徒歩3分
ローソン 徒歩2分
スーパーポテト 徒歩6分
大渕第一小学校 徒歩6分
大渕中学校 徒歩7分
土地面積
0m²
現況
空室
引渡日 相談
即日
取引態様
媒介

※ホームページ上の情報と現況が異なる場合は、現況が優先となります。
※掲載中に売却済、売却中止、価格変更となる場合がございます。予めご了承ください。
※価格は全て税込みまたは非課税表示となっております。
※仲介物件の場合、ご成約の際は仲介手数料・消費税が必要となります。

株式会社駿河勧業開発へのお問い合わせは、お問い合わせフォームより承っております。
お急ぎの方は、お電話0545-52-0990にてご連絡ください。

メールを送信すると、ご入力いただいたメールアドレス宛に自動返信メールが届きます。

もしメールが届いていない場合は下記の理由が考えられますので、お手数ですがご確認ください。

  • 入力されたメールアドレスが間違っている
  • 迷惑メールフォルダに入ってしまっている
  • メールの受信/拒否設定がされている

estateお問い合わせ

    物件名 [ID]必須

    お名前必須

    フリガナ必須

    貴社名

    ご住所

    電話番号

    メールアドレス必須

    内容必須

    不動産のこと、どんな小さなご相談でもお気軽に。

    気になる物件がある方、条件に合う不動産を探している方、売却と購入を同時に検討している方など、どんなご相談にも丁寧にお応えします。富士・富士宮エリアを熟知したスタッフが、物件の特徴や周辺環境、将来性まで踏まえて誠実にご案内。初めての不動産取引でも安心して進められるよう、資金計画や手続きの流れもわかりやすくご説明いたします。お気軽にお問い合わせください。

    富士市・富士宮市不動産の売買

    賃貸の仲介(分譲地・売土地・中古物件販売等)

    トップに戻る

    Fudousan Plugin Ver.6.2.0