中古住宅
ID: 02000437
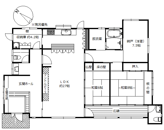
富士市厚原中古住宅
☆高いステータスを感じられる大型平屋中古住宅!
☆この面積で平屋建て、贅沢な敷地の使い方!
☆余裕の200坪超え!裏に官地もあり広々!
☆宅内車イス対応のバリアフリー設計!
ご成約済
- 価格
0 円 ご成約済
- 所在地
- 富士市厚原
- 土地面積
- 689.41m²
- 土地権利
- 所有権
- 地目
- 宅地
- 都市計画
- 市街化区域
- 用途地域
- 第一種低層住居専用地域
- 建ぺい率
- 40%
- 容積率
- 60%
- 接道状況
- 北西側富士市道路 厚原八笠8号線
- 現況
- 空き家
- 法令上の制限
- 厚原北部地区申し合わせ事項
- 引渡日 相談
- 即日
- 取引態様
- 媒介
- 備考
- 学区 丘小学校/岳陽中学校
2019/6/14価格改定
※ホームページ上の情報と現況が異なる場合は、現況が優先となります。
※掲載中に売却済、売却中止、価格変更となる場合がございます。予めご了承ください。
※価格は全て税込みまたは非課税表示となっております。
※仲介物件の場合、ご成約の際は仲介手数料・消費税が必要となります。
株式会社駿河勧業開発へのお問い合わせは、お問い合わせフォームより承っております。
お急ぎの方は、お電話0545-52-0990にてご連絡ください。
メールを送信すると、ご入力いただいたメールアドレス宛に自動返信メールが届きます。
もしメールが届いていない場合は下記の理由が考えられますので、お手数ですがご確認ください。
- 入力されたメールアドレスが間違っている
- 迷惑メールフォルダに入ってしまっている
- メールの受信/拒否設定がされている
estateお問い合わせ
不動産のこと、どんな小さなご相談でもお気軽に。
気になる物件がある方、条件に合う不動産を探している方、売却と購入を同時に検討している方など、どんなご相談にも丁寧にお応えします。富士・富士宮エリアを熟知したスタッフが、物件の特徴や周辺環境、将来性まで踏まえて誠実にご案内。初めての不動産取引でも安心して進められるよう、資金計画や手続きの流れもわかりやすくご説明いたします。お気軽にお問い合わせください。
お問い合わせはこちら



















