伝法中古住宅|富士・富士宮の不動産詳細情報|駿河勧業開発(イエステーション富士店・富士宮店)

MENU

採用情報

物件紹介

伝法中古住宅

中古住宅

ID: 02000586

伝法中古住宅

築浅の平屋建住宅です。

価格

0 円 ご成約済

所在地
富士市伝法
最寄り
  • 岳南電車 吉原本町駅 徒歩 28分
周辺環境
主要幹線道路にアクセス良好です。
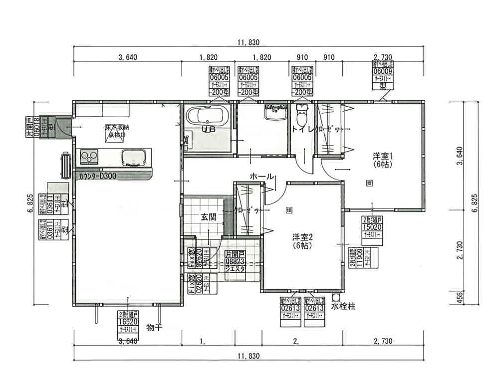
土地面積
153.39m²
土地権利
所有権
地目
宅地
都市計画
市街化区域
用途地域
第二種中高層住居専用地域
建ぺい率
70%
容積率
150%
接道状況
東側富士市管理道路 幅員5.0m 南側位置指定道路 幅員6.0m
現況
居住中
法令上の制限
5・4・5石坂公園(都市計画法第53条の許可)
引渡日 相談
相談
取引態様
媒介

※ホームページ上の情報と現況が異なる場合は、現況が優先となります。
※掲載中に売却済、売却中止、価格変更となる場合がございます。予めご了承ください。
※価格は全て税込みまたは非課税表示となっております。
※仲介物件の場合、ご成約の際は仲介手数料・消費税が必要となります。

株式会社駿河勧業開発へのお問い合わせは、お問い合わせフォームより承っております。
お急ぎの方は、お電話0545-52-0990にてご連絡ください。

メールを送信すると、ご入力いただいたメールアドレス宛に自動返信メールが届きます。

もしメールが届いていない場合は下記の理由が考えられますので、お手数ですがご確認ください。

  • 入力されたメールアドレスが間違っている
  • 迷惑メールフォルダに入ってしまっている
  • メールの受信/拒否設定がされている

estateお問い合わせ

    物件名 [ID]必須

    お名前必須

    フリガナ必須

    貴社名

    ご住所

    電話番号

    メールアドレス必須

    内容必須

    不動産のこと、どんな小さなご相談でもお気軽に。

    気になる物件がある方、条件に合う不動産を探している方、売却と購入を同時に検討している方など、どんなご相談にも丁寧にお応えします。富士・富士宮エリアを熟知したスタッフが、物件の特徴や周辺環境、将来性まで踏まえて誠実にご案内。初めての不動産取引でも安心して進められるよう、資金計画や手続きの流れもわかりやすくご説明いたします。お気軽にお問い合わせください。

    富士市・富士宮市不動産の売買

    賃貸の仲介(分譲地・売土地・中古物件販売等)

    トップに戻る

    Fudousan Plugin Ver.6.2.0